Резервуары для хранения воды для инъекций
Нержавеющие емкости для воды для инъекций (WFI или ВДИ) являются проверенным решением для хранения ультрачистой стерильной воды, используемой в фармацевтическом производстве. Наши накопительные резервуары WFI доступны в вертикальном и горизонтальном исполнении, с опциональным выбором однослойной или двухслойной конструкции. Эти фармацевтические резервуары, разработанные с возможностью нагрева и теплоизоляции, оснащены спиральной рубашкой в промежуточном слое для парового обогрева или охлаждения водой. Теплоизоляционный слой выполняется из высококачественного стекловолокнистого полотна для поддержания превосходных тепловых характеристик.
Мы предлагаем разработку индивидуального дизайна и изготовление резервуаров для хранения инъекционной воды (WFI) в соответствии с конкретными требованиями вашего фармацевтического производства.
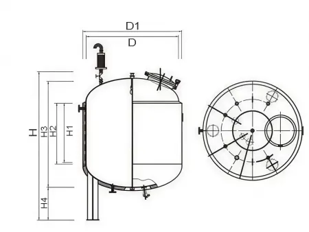
| Модель | Объем (л) | Габариты (мм) | ||||||
| D | D1 | H | H1 | H2 | H3 | H4 | ||
| | 300 | 800 | 900 | 1484 | 460 | 461 | 820 | 400 |
| | 500 | 900 | 1000 | 1587 | 530 | 530 | 928 | 400 |
| | 1000 | 1100 | 1200 | 1878 | 750 | 750 | 1356 | 400 |
| | 2000 | 1300 | 1400 | 2463 | 1220 | 1220 | 1926 | 400 |
| | 3000 | 1600 | 1700 | 2395 | 1220 | 1100 | 2070 | 400 |
| | 4000 | 1800 | 1900 | 2557 | 1220 | 1220 | 2220 | 400 |
| | 5000 | 1900 | 2000 | 2637 | 1220 | 1220 | 2220 | 400 |
| | 6000 | 2000 | 2100 | 2806 | 1380 | 1380 | 2206 | 400 |
| | 8000 | 2200 | 2300 | 3226 | 1500 | 1500 | 2680 | 400 |
| | 10000 | 2400 | 2500 | 3450 | 1580 | 1780 | 2780 | 400 |
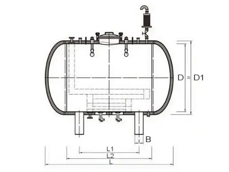
| Модель | Объем (л) | Габариты (мм) | |||||
| D | D1 | L | L1 | L2 | B | ||
| | 1000 | 1000 | 1100 | 1696 | 730 | 1050 | 150 |
| | 2000 | 1200 | 1300 | 2267 | 1050 | 1500 | 150 |
| | 3000 | 1300 | 1400 | 2746 | 1300 | 1950 | 150 |
| | 4000 | 1500 | 1600 | 2796 | 1300 | 1900 | 200 |
| | 5000 | 1600 | 1700 | 3002 | 1400 | 2050 | 200 |
| | 6000 | 1700 | 1800 | 3202 | 1450 | 2200 | 200 |
| | 8000 | 1900 | 2000 | 3444 | 1650 | 2350 | 250 |
| | 10000 | 1900 | 2000 | 4144 | 2050 | 3000 | 250 |
| | 15000 | 2100 | 2200 | 4910 | 2500 | 3800 | 300 |
| | 20000 | 2300 | 2400 | 5492 | 2800 | 4200 | 300 |
Да, мы можем спроектировать и изготовить термосборники для хранения инъекционной воды по индивидуальному заказу в соответствии с вашими требованиями. Резервуары выполняются в санитарно-гигиеническом стиле и могут быть оснащены функциями очистки на месте (CIP) и подачи пара на месте (SIP). Они также полностью соответствуют стандартам GMP и подходят для медицинской промышленности.
Абсолютно. Наши резервуары для WFI могут быть изготовлены по индивидуальному заказу в соответствии с уникальными требованиями к материалам и изоляции. Все емкости выполняются в санитарно-гигиеническом исполнении фармацевтического класса и могут быть оснащены изоляцией из материалов, не содержащих асбеста и хлора. Наружный изоляционный слой создается из нержавеющей стали SS304, что делает его пригодным для применения в пищевой промышленности.
Да. Мы можем изготовить термосборники для хранения инъекционной воды по индивидуальному заказу с кожухами-змеевиками, с кожухами-половинками или с полными кожухами, чтобы обеспечить эффективный температурный обмен внутри емкости. Резервуары также могут быть изолированы и спроектированы с учетом функциональности CIP и SIP моек. Благодаря уникальному дизайну, отвечающему требованиям фармацевтического класса, эти резервуары отлично подходят для создания фармацевтического производства.
Мы разрабатываем индивидуальные резервуары для хранения очищенной воды с функциями CIP и SIP моек, соответствующих стандартам GMP. Резервуары могут оснащаться различными приборами, такими как распылительные шарики, мембранные манометры (датчики давления), датчики температуры и датчики уровня жидкости, что гарантирует их совместимость с требованиями электронного производства.

